Das schlanke Volumen rahmt den bestehenden Schulhof und führt die umlaufende Arkade nahtlos weiter. Die einfache Geometrie beruhigt die heterogene Bebauung rund um den Hof und setzt klare Linien. An den Stirnseiten reagiert das Gebäude mit zwei einfachen Versätzen, die die angrenzenden Plätze akzentuieren. Zwei zurückversetzte Pultdächer widerspiegeln die Dachlandschaft des gegenüberliegenden Begegnungszentrums und bringen Licht in die obersten Klassenzimmer.
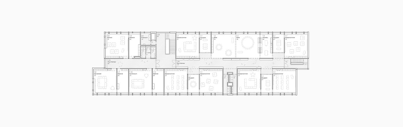
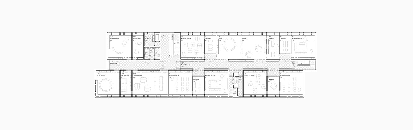
Im Innern wird das Gebäude durch eine zentrale «Rue Intérieure» erschlossen. Zusammengehörige Schul- und Gruppenräume sind um kleine Eingangsnischen gruppiert, die dank einer grosszügigen Verglasung die Mitte belichten. Ein einfaches, alternierendes Farbkonzept schafft drei unterschiedliche Farbstimmungen, welche die verschiedenen schulischen Einheiten, die sogenannten Cluster, abbilden.
Das Gebäude ist als Holz-Beton-Hybrid angedacht. Die zentrale Erschliessung mit ihren angrenzenden Kernen bildet das massive Rückgrat des Gebäudes und übernimmt die Erdbebenaussteifung. Nach aussen setzt ein Holzskelettbau an, der mit einer Balkendecke und Fassadenstützen die Kräfte in den massiven Sockel ableitet. In der warmen Welt des Holzbaus finden die Klassenzimmer ihren Platz.
Alternierende Stützenpaare rhythmisieren die Öffnungen der durchgehenden Bandfenster. Vorvergraute Holzschalungen deuten durch ihre unterschiedlichen Verlegerichtungen das dahinterliegende Tragverhalten an und verleihen der Holzkonstruktion das entsprechende Äussere. Rohes Aluminium setzt kühle, glänzende Akzente.
mehr
weniger
| Auftraggeber | Einwohnergemeinde Schenkon | |
| Verfahren | Gesamtleisterwettbewerb | |
| Jahr | 2022 | |
| Status | 2. Preis |