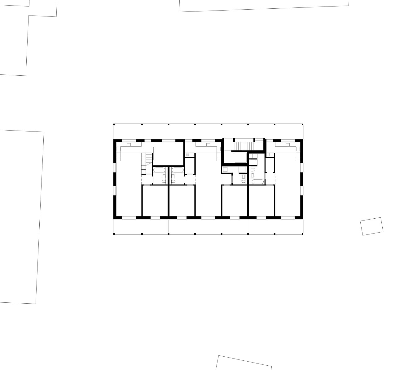
In Ottenbach entstand auf der Engelwiese ein Wohnhaus, das zeitgemäße Wohnqualität und regionale Baukultur miteinander vereint. Acht neue Wohnungen finden Platz in der einfachen Geometrie des neuen Wohnhauses, dessen reduzierte Formensprache vom langen Satteldach geprägt ist – ein typisches, architektonisches Element der Region.
Das Gebäude ist auf der Längsseite durch einen Laubengang erschlossen. Dieser öffnet das Gebäude zum Dorf und zur Natur hin und verleiht dem grossen Volumen Leichtigkeit und Transparenz. Auf der Laube entsteht Raum für kleine, alltägliche Momente, die die Hausbewohner miteinander teilen. Vom kurzen Gespräch auf dem Weg zur Arbeit bis zum Feierabendbier im gemütlichen Gartenstuhl. Auf der gegenüberliegenden Seite findet der Laubengang sein Pendant mit einer durchgehenden, privaten Balkonschicht.
Das Wohnhaus wurde als Holz-Beton-Hybrid konstruiert. Die ruhige, räumliche Struktur folgt einem sorgfältig durchdachten Schotten-System, welches als Auflager für die Holzdecken dient. Bei dieser werden Holzlamellen quer aneinandergereiht und mit Holzdübeln verbunden. Der natürliche Werkstoff bleibt dabei in seiner reinen Form erhalten – die Konstruktion trägt ganz ohne Leim oder Metallteile.
Die Fassade ist von einem natürlichen Farbspiel geprägt. Vorvergraute Hölzer wechseln sich mit feuerverzinkten Metall-Geländern ab. Diese Kombination sorgt für einen ansprechenden Kontrast von kühlen und warmen Oberflächen, während die Farbigkeit und Geometrie die unterschiedlichen Materialien zum stimmigen Ganzen fügt.
mehr
weniger
| Auftraggeber | Privat | |
| Verfahren | Direktauftrag | |
| Jahr | 2021-2025 | |
| Status | realisiert | |
| Leistungen | Entwurf, Vorprojekt, Bauprojekt, Kosten und Termine, Submission und Vergabe, Ausführungsplanung |