Das neue Schulhaus ergänzt die öffentliche Nutzung auf dem Perimeter, der bereits das Gemeindehaus sowie ein „Zopfhaus“ genanntes Veranstaltungsgebäude aufnimmt. Anstatt die kleinen Nutzer von der etablierten Welt der Erwachsenen zu separieren, wurde ein integrativer Ansatz verfolgt und so ist das neue Schulhaus nicht etwa auf dem südlich gelegenen Freiraum, sondern direkt an die bestehenden Bauten angrenzend positioniert. Dabei formt der Neubau mit dem Gemeinde- und dem Zopfhaus zusammen einen neuen Platz, den Jung und Alt gemeinsam beleben.
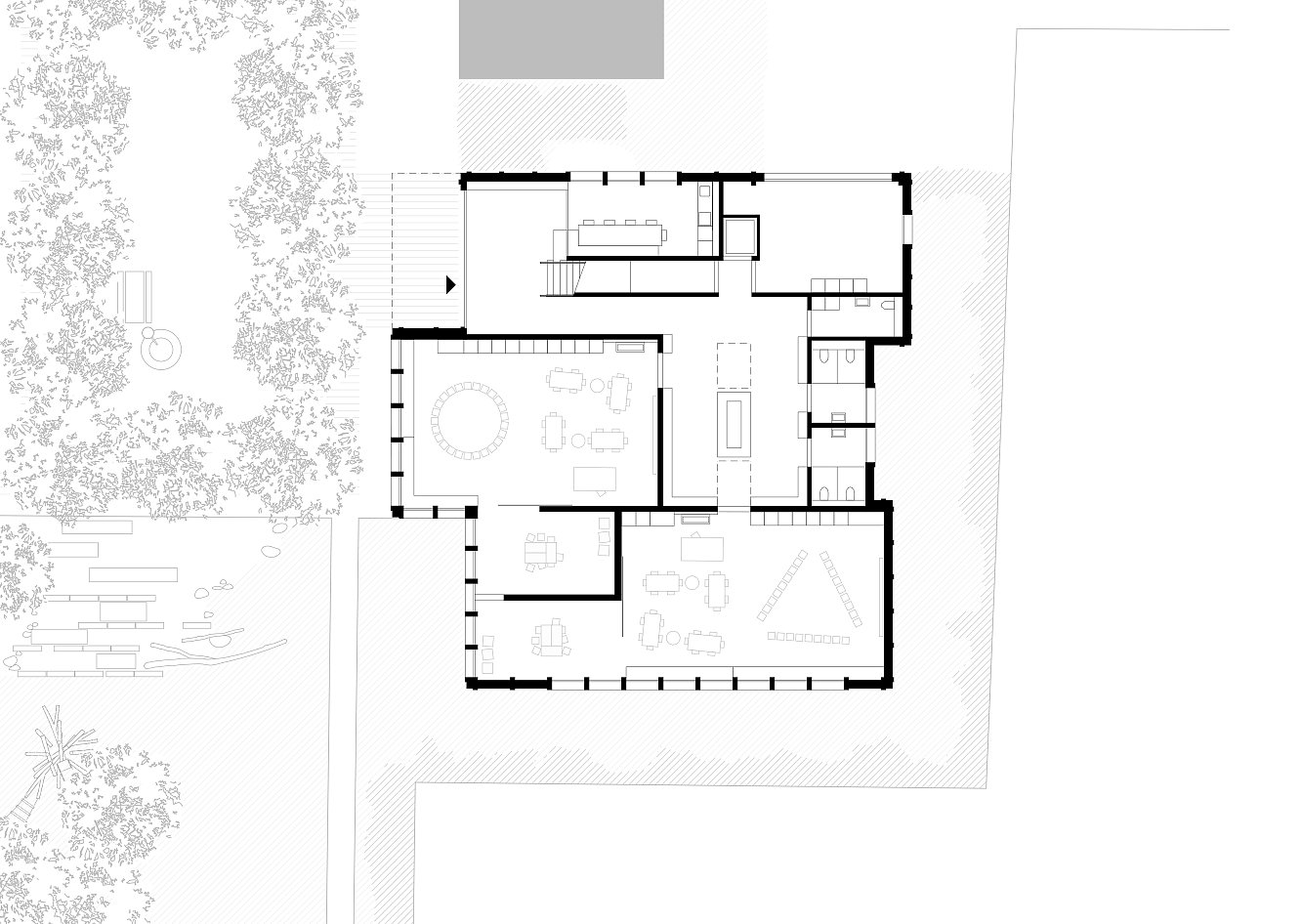
Zur Bildung eines harmonischen Gleichgewichtes der Baukörper wurde das tendenziell flächige Gebäudevolumen in drei Schiffe geteilt, deren Stirnseiten in etwa jenen der nachbarlichen Gebäude entsprechen. Diese drei städtebaulichen Volumen des Gebäudes entsprechen im Inneren drei unterschiedlichen Nutzungen. Das nördliche Schiff ist den Lehrpersonen vorbehalten, während die beiden südlichen Baukörper je eine Schuleinheit aufnehmen, die sich Garderobe und Toiletteanlagen teilen.
Der Neubau ist ein Holzbau, dessen stringentes System aus Holzbalken und -stützen das Gebäude rhythmisch gliedert. Die Strenge der Konstruktion wird spielerisch durch die Fassadengestaltung gebrochen, deren Fenster auf unterschiedlichen Höhen zu liegen kommen. Die Fensterbänke werden als Sitzbänke oder Schreibtische genutzt. Während sich das Holz nach Innen mit seiner natürlichen Oberfläche zeigt, präsentiert sich die gestrichene Gebäudefassade nach aussen am neuen Dorfplatz als dezenter Farbakzent.
mehr
weniger
| Auftraggeber | Gemeinde Staufen | |
| Verfahren | Gesamtleistungswettbewerb 2019, 1. Preis | |
| Gesamtleister | Schäfer Holzbautechnik AG | |
| Jahr | 2020 - 2022 | |
| Status | realisiert | |
| Leistungen | Entwurf, Bauprojekt, Submissionsunterlagen, Ausführungsplanung, Gestalterische Bauleitung |